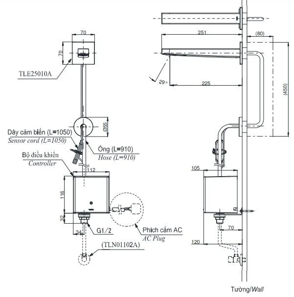
Thông tin vòi cảm ứng TOTO TLE25010A gắn tường
- Mã sản phẩm : TLE25010A
- Tên sản phẩm: Vòi lavabo cảm ứng TOTO tự động gắn tường
- Lưu lượng nước: 2L/phút
- Áp lực nước: 0.05 ~ 0.75 MPa
- Chất liệu: Đồng mạ chrome bóng
- Chú ý: lắp tường 20 cm
- Xuất xứ: Trung Quốc
Gợi ý sử dụng vòi TLE25010A với bộ cảm ứng theo tính năng
- Dùng pin, nước lạnh:TLE04502A1/TLN01102A
- Dùng điện, nước lạnh:TLE01502A1/TLN01102A
- Tự tái tạo, nước lạnh:TLE03502A1/TLN01102A
- Dùng pin, nhiệt độ:TLE04502A1/TLN01103A/TLE05701A
- Dùng điện, nhiệt độ:TLE01502A1/TLN01103A/TLE05701A
- Tự tái tạo, nhiệt độ:TLE03502A1/TLN01103A/TLE05701A
Mua thêm bộ xả TVLF405
Tính năng vòi rửa tay cảm ứng TLE25010A TOTO
- Sản phẩm không chạm – Đảm bảo vệ sinh sạch sẽ
- Cảm biến được đặt bên dưới đầu vòi để phát hiện người dùng chính xác hơn
- Công nghệ SELF POWER: Nguồn điện tự tạo giúp tiết kiệm điện (Bộ điều khiển: TLE03502A1)
- Công nghệ ECO CAP: Đầu vòi tạo bọt tiết kiệm nước
Bản vẽ vòi tự động TOTO TLE25010A











