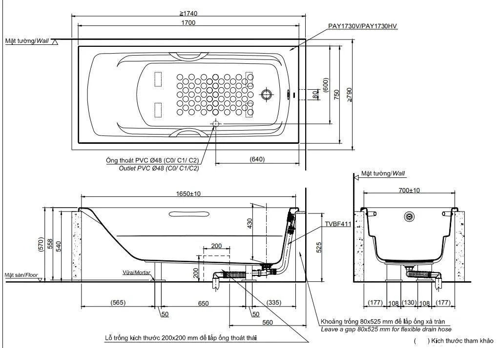
Thông tin cơ bản bồn tắm TOTO PAY1730V/TVBF411
- PAY1730V: Bồn tắm
- TVBF411 : Bộ xả nhấn kèm ống thải bồn tắm
- Bồn tắm nhựa không tay vịn TOTO , không yếm
- Kích thước: 1700 x 750 x 558mm
- Chất liệu: Nhựa
- Màu sắc: Màu trắng
- Xuất xứ: Việt Nam
Tính năng bồn tắm xây PAY1730V TVBF411 TOTO
- Thiết kế sang trọng với độ sâu phù hợp
- Bề mặt chống trơn trượt
- Tiện lợi với điểm tựa đầu thư giãn
Bản vẽ kỹ thuật bồn tắm TOTO PAY1730V-TVBF411











