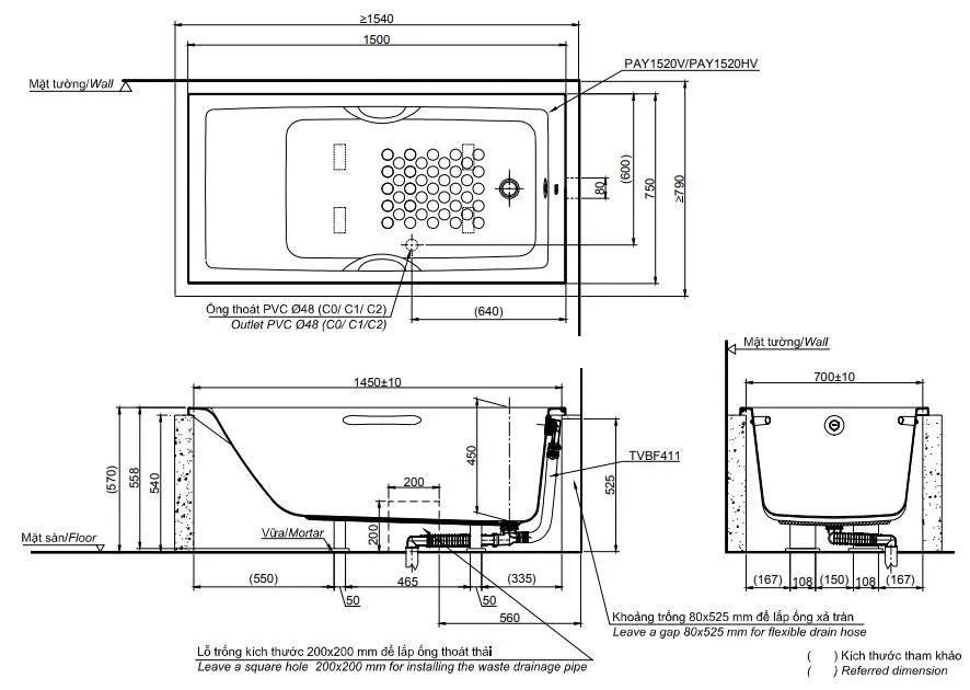
Thông tin cơ bản bồn tắm TOTO PAY1520V#W/TVBF411
- PAY1520V#W: Bồn tắm
- TBVF411 : Bộ xả nhấn kèm ống thải bồn tắm
- Bồn tắm nhựa không tay vịn TOTO , không yếm
- Kích thước: 1500 x 750 x 558 mm
- Dung tích: 176L
- Chất liệu: Nhựa
- Màu sắc: Màu trắng
- Xuất xứ: Việt Nam
Tính năng bồn tắm xây PAY1520V/TVBF411 TOTO
- Thiết kế sang trọng với độ sâu phù hợp
- Bề mặt chống trơn trượt
- Tiện lợi với điểm tựa đầu thư giãn
Bản vẽ kỹ thuật bồn tắm TOTO PAY1520V-TVBF411











