Thông tin cơ bản bồn tiểu nam TOTO UT904HR
- Bồn tiểu nam treo tường của hãng thiết bị vệ sinh TOTO
- Mã sản phẩm đầy đủ: UT904HR#XW
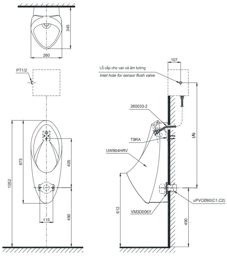
- Kích thước: 345D x 260W x 675H mm
- Áp lực nước : 0.07MPa ~ 0.75MPa
- Lượng nước xả: 0.5L
- Màu sắc : Màu trắng
- Đường cấp nước phía sau (âm)
- Xuất xứ: Việt Nam
- Chỉ sử dụng được với van xả cảm ứng: DUE126UE, DUE126UK, DUE126UPE, DUE126UPK
Tính năng chậu tiểu nam UT904HR#XW TOTO
- Thiết kế nhỏ gọn, tiện dụng với vách ngăn tạo không gian riêng tư
- Chế độ xả trải đều mạnh mẽ
Bản vẽ bồn tiểu TOTO UT 904HR











