Thông tin cơ bản bồn tiểu nam INAX U-417V treo tường
- Bồn tiểu nam treo tường cải tiến tiết kiệm nước, chống bám bẩn đến từ thương hiệu thiết bị vệ sinh INAX
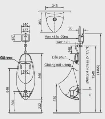
- Sản phẩm bệ tiểu này đã bao gồm đầu phun rửa UF-417R, gioăng cao su nối tường UF-104BWP(VU), ống cấp nước A-U417R(A/B)
- Không bao gồm van xả
- Kích thước: 866 x 345 x 420 mm
- Màu sắc: Trắng
- Các loại van xả phù hợp: OKUV-30SM
Bản vẽ kỹ thuật chậu tiểu nam U417V INAX











