Sản phẩm bỏ mẫu, hết hàng tồn kho
- Bàn cầu của thương hiệu thiết bị vệ sinh TOTO
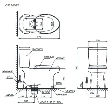
- Tên sản phẩm: Bồn cầu TOTO CS350DT2, bàn cầu TOTO hai khối, nắp đóng êm
- Hệ thống xả: Siphon
- Thiết kế: Thân dài
- Tâm xả: 305mm
- Kích thước: 753x350x760 mm
- Áp lực nước: 0.05MPa~0.75MPa
- Màu sắc: Màu trắng, Bao gồm van khóa và gioăng đế
- Xuất xứ : Việt Nam
- Mã sản phẩm củ : CST350DS
Tính năng bồn cầu TOTO CS660
- Thiết kế sang trọng, hiện đại
- Nắp đóng êm
- Tiết kiệm nước với chế độ xả 6L/3L
Xuất xứ Việt Nam – Bồn cầu bao gồm 3 bộ phận
- Thân cầu: C350R
- Két nước: S350D
- Nắp bồn cầu: TC393VS
Bản vẽ kỹ thuật xí bệt TOTO CS350DT2











